云南麥克威是國標圖集18J621-3《通風天窗》參編單位,18J621-3型通風天窗分為開敞式屋脊天窗和啟閉式屋脊天窗,其中18J621-3型通風天窗(啟閉式屋脊天窗)適用范圍廣泛,下面云南麥克威天窗小編簡單介紹下3型通風天窗。
一、云南3型通風天窗(啟閉式屋脊天窗)防水方式
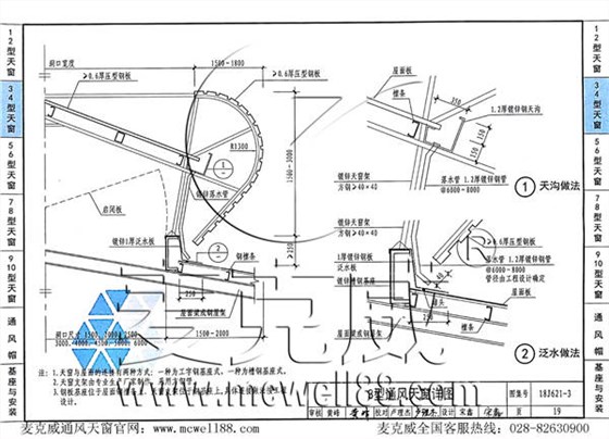
云南3型通風天窗(啟閉式屋脊天窗)采用麥克威的全結構防水,在板材節點部位采用專用扣件進行扣合處理,防水使用壽命同建筑屋面外板相同。18J621-3型通風天窗(啟閉式屋脊天窗)就不再采用硅膠、膠帶填縫堵漏,預防了硅膠、膠帶老化開裂造成的漏水隱患。
三、云南3型通風天窗(啟閉式屋脊天窗)喉口大小
云南3型通風天窗(啟閉式屋脊天窗)喉口寬度:1500mm、2000mm、2500mm、3000mm、4000mm、4500mm、5000mm、6000mm等;
云南3型通風天窗(啟閉式屋脊天窗)喉口長度:3000*n、4000*n(用于壓型鋼板或者現澆混泥土屋面)、6000*n(用于預應力鋼筋混泥土屋面板屋面);
云南3型通風天窗(啟閉式屋脊天窗)天窗對應高度:1500mm、2000mm、2500mm、3000mm、4000mm、4500mm、5000mm、6000mm等;
云南3型通風天窗(啟閉式屋脊天窗)代號有:18J621-3B-1530n(1540n、1560n)、18J621-3B-2030n(2040n、2060n)、18J621-3B-2530n(2540n、2560n)、18J621-3B-3030n(3040n、3060n)、18J621-3B-4030n(4040n、4060n)、18J621-3B-4530n(4540n、4560n)、18J621-3B-5030n(5040n、5060n)、18J621-3B-6030n(6040n、6060n)。另外長度,寬度,高度可根據圖集、甲方及設計要求定制生產。
二、云南3型通風天窗(啟閉式屋脊天窗)
云南3型通風天窗(啟閉式屋脊天窗)安裝可以屋脊安裝或者橫向安裝(順坡安裝),一般由天窗架、外圍護板(擋風板)、擋雨板、FRP采光板、排水溝槽、閥板、泛水板、啟閉機構等部分組成。閥板開關采用電動或手動控制,其骨架由型材焊接,防雨板采用彩色鋼板或玻璃纖維聚酯采光板(FRP)制作。流線型構造,體積較大,通風量較大。18J621-3型通風天窗(啟閉式屋脊天窗)對應11CJ33《通風采光天窗》圖集的MCW4型天窗;18J621-3《通風天窗》圖集的3型通風天窗。
通風天窗生產廠家——麥克威天窗是18J621-3《通風天窗》圖集參編單位,15年的研發推廣,使得麥克威具備了雄厚的實力稱霸西南,傲視全國,選擇18J621-3圖集產品請認準麥克威,想了解更多請訪問麥克威天窗網站(m.sdqie.cn)或者撥打麥克威客服熱線:028-82630900。

MCW5型通風天窗(暗扣式)
MCW7型通風天窗(箱型骨架式)
C1XT三角形電動采光排煙天窗(下開式)
TC5型流線型通風天窗