兼顧通風、采光、排煙、防雨等多種功能的側開式圓拱形電動采光排煙天窗,在需要經常開啟通風的建筑應用較多,如機械制造、汽車制造、航空航天、輕工業等工業建筑。那么,側開式圓拱型電動采光排煙天窗的內部結構構造是怎么樣的呢?
側開式圓拱形電動采光排煙天窗由窗體、弧形骨架、弧頂板材、電動推窗器、電動控制箱、泛水板等結構組成。其窗扇通過電控箱控制推窗器的開啟,從而實現側面開啟,開啟角度一般在70°以下,可用于日常通風換氣、排出濁氣。
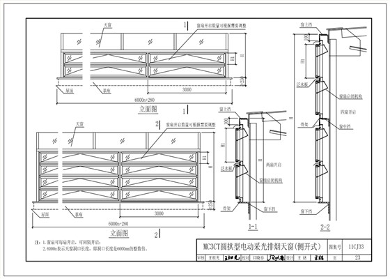
此外,天窗又可分為C3CT和MC3CT兩種窗型,其中C3CT圓拱型天窗為單層側開天窗,窗體高度介于1100mm-1714mm之間;MC3CT圓拱型天窗為多層側開天窗,通風排煙量更大,適用于通風要求較高的建筑,其窗體高度較于C3CT圓拱型電動采光排煙天窗更高,介于1830mm-4350mm,窗扇具有雙層或四層結構。
關于側開式圓拱形電動采光排煙天窗的規格參數、結構設計,可參考11cj33通風采光天窗圖集。

MCW5型通風天窗(暗扣式)
MCW7型通風天窗(箱型骨架式)
C1XT三角形電動采光排煙天窗(下開式)
TC5型流線型通風天窗